餐饮业平面图怎么画
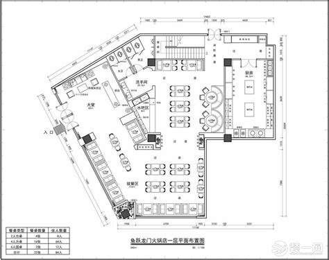
餐饮业平面布局图设计指南在餐饮业,一个合理的平面布局图设计对于营业效益和顾客体验至关重要。以下是一些建议,可帮助你设计出一个优秀的餐饮业平面布局图。 1. 空间规划要考虑用餐区、厨房区、服务区和洗手间等空间的合理规划。用餐区应该被设计得通风明亮,座位布局应该有合理的间隔,以便顾客有足够的私人空间。厨房区需要靠近供应区,便于原材料的配送和...
餐饮业平面布局图设计指南在餐饮业,一个合理的平面布局图设计对于营业效益和顾客体验至关重要。以下是一些建议,可帮助你设计出一个优秀的餐饮业平面布局图。 1. 空间规划要考虑用餐区、厨房区、服务区和洗手间等空间的合理规划。用餐区应该被设计得通风明亮,座位布局应该有合理的间隔,以便顾客有足够的私人空间。厨房区需要靠近供应区,便于原材料的配送和...
餐饮店平面方案设计解析餐饮店平面方案设计是餐厅运营成功的重要一环。一个好的平面方案设计不仅可以有效利用空间,提升顾客体验,还可以增加营业额。以下是我针对餐饮店平面方案设计的一些讲解:在设计餐饮店平面方案时,首先要考虑的是空间规划。要根据店铺的大小和类型合理布局厨房、堂区、服务区等功能区域,确保每个区域的流线布局合理顾客就餐舒适。厨房是餐饮...