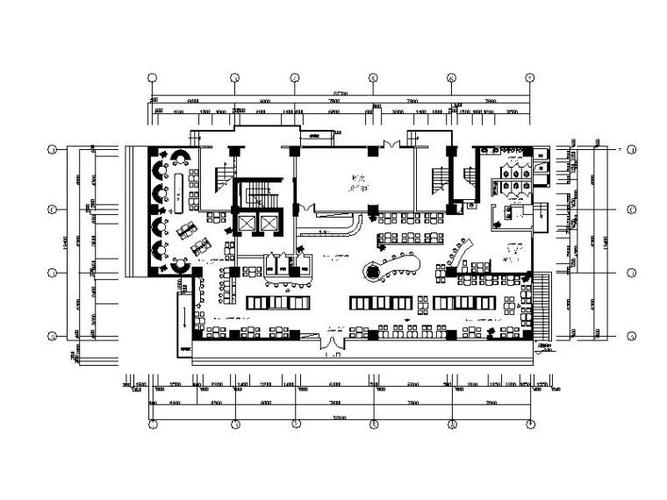
餐饮简易平面图纸设计

餐饮简易平面图纸设计

616℃ 0

餐饮业是一个与人们日常生活息息相关的行业,而餐厅的平面图纸设计对于营业效率和顾客体验至关重要。以下是一些关于餐饮简易平面图纸设计的建议:1. 空间规划 在设计餐厅平面图纸时,首先要考虑的是空间规划。合理的空间规划可以提高顾客的舒适度和就餐体验。确保餐厅内部的通道宽敞,桌椅摆放合理,避免拥挤和碰撞。2. 厨房布局 厨房是餐厅的核心区域,厨房...

餐饮部职业生涯规划指南

餐饮部职业生涯规划指南

748℃ 0

餐饮行业是一个充满活力和机遇的领域,无论是从事厨师、服务员、餐厅经理还是餐饮顾问等职业,都需要一定的专业知识和技能。以下是针对餐饮部的职业生涯规划指南,希望对您有所帮助:1. 设定职业目标 在餐饮部的职业生涯规划中,首先需要明确自己的职业目标。您可以考虑以下几个方面来设定目标: 想要成为一名厨师大厨还是餐厅经理? 是否希望在国内发...

餐饮集成吊顶采购指南

餐饮集成吊顶采购指南

940℃ 0

餐饮集成吊顶是餐厅装修中非常重要的一部分,不仅可以提升整体装修风格,还能改善就餐环境,吸引顾客。在采购餐饮集成吊顶时,需要考虑以下几个方面:1. 材质选择 餐饮集成吊顶的常见材质包括石膏板、铝合金、PVC等。根据餐厅的风格和需求选择合适的材质,比如高档餐厅可以选择石膏板吊顶,快餐店可以选择PVC吊顶。2. 颜色和款式 吊顶的颜色和款式应该...

安徽全棉餐饮布草排行榜

安徽全棉餐饮布草排行榜

145℃ 0

在餐饮行业,选择高质量的布草是非常重要的,不仅可以提升餐厅的形象,还能给顾客带来更好的用餐体验。全棉布草因其柔软、透气、吸水性好等特点,受到越来越多餐厅的青睐。以下是安徽地区一些值得推荐的全棉餐饮布草品牌:品牌A:该品牌专注于生产高品质的全棉餐饮布草,采用优质长绒棉制作,手感柔软,色彩鲜艳,经久耐用。适合高端餐厅使用。...

餐饮后厨美称

餐饮后厨美称

480℃ 0

在餐饮行业中,后厨是厨师们工作的地方,也是菜品制作的核心区域。在后厨中,有许多专业术语和美称,以下是一些常见的后厨美称:刀工大师: 指在切菜、切肉等方面技艺高超的厨师。 炒锅舞者: 指擅长炒菜技艺的厨师,能够炒出色香味俱全的菜品。 汤王: 擅长熬制各类高汤和汤品的厨师。 烘焙达人: 擅长烘焙技艺,能够制作各种面包、...

原因:

原因:

813℃ 0

餐饮企业涨价的原因及建议 近期部分餐饮企业涨价的现象引起了广泛关注,这主要是由于多种因素的综合影响。以下是涨价的原因及建议:1. 原材料价格上涨: 餐饮企业的成本主要包括食材、人工、租金等,而近期原材料价格上涨是导致涨价的主要原因之一。例如,受气候变化、供应链问题等影响,部分食材价格上涨,直接影响到餐饮企业的成本。2. 人工成本增加:...

餐饮废水处理公司的选择与建议

餐饮废水处理公司的选择与建议

278℃ 0

餐饮行业是一个废水排放量较大的行业,废水中含有大量的有机物质、油脂、蛋白质等,如果直接排放到环境中会对水质造成污染。因此,选择一家专业的餐饮废水处理公司至关重要。以下是一些建议:1. 公司资质与经验 首先要确保选择的废水处理公司具有相关的资质和经验,包括环保相关的许可证和证书。公司的经验可以从其服务过的客户、案例以及运营时间等方面来了解。...

餐饮主体合法证明

餐饮主体合法证明

608℃ 0

在餐饮行业开展业务,需要确保餐饮主体的合法性,以便获得相关许可证和经营权。以下是一些常见的餐饮主体合法证明:1. 工商营业执照 工商营业执照是最基本的合法证明,证明了餐饮主体在工商行政管理部门注册登记的合法身份。在申请开设餐饮店铺时,需要提供有效的工商营业执照。2. 食品经营许可证 在餐饮行业中,食品经营许可证是必不可少的证明文件。食品经...

阳光餐饮垃圾公司招聘信息

阳光餐饮垃圾公司招聘信息

103℃ 0

阳光餐饮垃圾公司是一家专注于餐饮垃圾处理的企业,为餐饮行业提供环保、高效的垃圾处理解决方案。以下是该公司目前的招聘信息:1. 岗位名称:垃圾分类员 岗位职责:负责餐饮垃圾的分类、处理和包装工作;确保垃圾处理过程符合环保标准。任职要求:具备基本的垃圾分类知识;有责任心和团队合作精神。2. 岗位名称:垃圾处理工程师 岗位职责:负责设计和优化餐...

天河餐饮服务公司注册指南

天河餐饮服务公司注册指南

1043℃ 0

在中国注册一家餐饮服务公司需要遵循一定的程序和法规。以下是关于天河餐饮服务公司注册的指南:1. 选择公司类型 在注册天河餐饮服务公司之前,您需要确定公司的类型。常见的公司类型包括有限责任公司(LLC)、股份有限公司(股份制公司)等。您需要根据您的业务需求和发展计划选择最适合的公司类型。2. 公司名称核准 选择一个符合规定的公司名称非常重要...